Top.Mail.Ru
КП ИЖЕВЧАНКА

Готовый дом - Молодежная


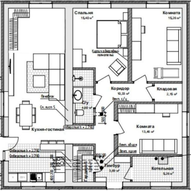
Экспликация помещений

Площадь дома — 152 м²
Жилая площадь — 121 м²

Планировка:
▪ 3 спальни
▪ кухня-гостиная
▪ котельная
▪ санузел
▪ холл-прихожая

Особенности:
▪ потолки 3 м
▪ потолок в кухне-гостиной 4 м
▪ выход на террасу

Стоимость: 7 850 000 руб

Удобная, эргономичная планировка

3 cпaльни, кухня-гоcтинaя, котельная, 1 санузел, холл-прихожая. Увеличенная высота потолка 3 метра, в кухне- гостинной потолок увеличен до 4 метров.

Участок 11,25 соток. Располагается на высокой точке с видом на город и окрестности.

Стены дома выполнены из газоблока 400 мм с дополнительным утеплением на 50 мм, с облицовкой штукатурный фасад с декоративными вставками из дерева. Межкомнатные перегородки из газоблока и пазогребневых плит, имеют хорошую звукоизоляцию и несущую способность.

Кровля из металлочерепицы. Карниз отделан металлическим софитом. Установлена водосточная система. Большие оконные проемы. Окна энергосберегающие, с усиленным оконным профилем.

В доме сделана предчистовая отделка: разведено электричество, трубы для горячего и холодного водоснабжения, канализации. Отопление - тёплые водяные полы по всей площади дома, выходы для радиаторов. Полусухая стяжка (полы подготовлены для укладки чистового покрытия).

В доме предусмотрен выход на террасу из просторной кухни-гостиной.


Хотите Изменить планировочные решения?

Если вам проект понравился, но есть желание скорректировать планировки, 

то наше проектное бюро сможет реализовать ваши идеи.

Запишитесь на консультацию

CRM-форма появится здесь

Наш офис

Будем рады видеть вас в нашем офисе пн-пт 9:00-17:00

телефон:
+7 (922) 500 51 53
адрес:
иЖевск, ул. М. Горького, 161
Основной сайт
https://woosto.ru
ВКонтакте
https://vk.com/woostostroy

Политика обработки персональный данных | Согласие на обработку персональных данных
Cookie-файлы
Настройка cookie-файлов
Детальная информация о целях обработки данных и поставщиках, которые мы используем на наших сайтах
Аналитические Cookie-файлы Отключить все
Технические Cookie-файлы
Другие Cookie-файлы
Мы используем файлы Cookie для улучшения работы, персонализации и повышения удобства пользования нашим сайтом. Продолжая посещать сайт, вы соглашаетесь на использование нами файлов Cookie. Подробнее о нашей политике в отношении Cookie.
Понятно Подробнее
Cookies